1 180 000,00 PLN (18 880,00 PLN)

3 pok. ze słonecznym ogródkiem/metro/BEZ PROWIZJI

Mieszkanie na sprzedaż,
Warszawa, Batalionów Chłopskich

Kontakt z agentem: HomeAlly
Opis nieruchomości

WYGODNE MIESZKANIE Z OGRÓDKIEM - 2 MIN. OD POWSTAJĄCEJ STACJI METRA!

Dodatkowo podwójne, wygodne miejsce postojowe.

Na sprzedaż 3 pokojowe mieszkanie zlokalizowane w apartamentowcu przy ulicy Batalionów Chłopskich 81 na warszawskim Bemowie. 2 min. piechotą od powstającej stacji metra Chrzanów.

Nieruchomość mieści się na parterze pięciokondygnacyjnego budynku z 2014 roku. Nad bezpieczeństwem mieszkańców osiedla czuwa całodobowa ochrona oraz monitoring. Na dziedzińcu budynku znajduje się plac zabaw. Osiedle zielone, zadbane z licznymi ławkami.

Mieszkanie bardzo dobrze utrzymane, gotowe do wprowadzenia. Nie wymaga żadnych nakładów finansowych. Z tego względu jest też idealnym wyborem dla poszukujących inwestycji pod wynajem, z szybkim, stałym i pewnym zwrotem. Meble i sprzęt AGD w zabudowie w cenie do dyspozycji Kupującego. Meble ruchome do uzgodnienia.

SZCZEGÓŁY NIERUCHOMOŚCI

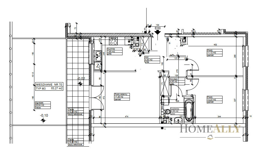
Powierzchnia mieszkania wynosi 62,54 m2. Składają się na nią:



  • Kuchnia

  • salon z częścią jadalnianą

  • 2 sypialnie

  • łazienka

  • schowek

  • hol.


Dodatkowo do mieszkania przynależy duży, kameralny i zagospodarowany ogródek o powierzchni ok. 23 m2 .

Podwójne miejsce postojowe w garażu podziemnym płatne dodatkowo 90.000 zł.


WYPOSAŻENIE MIESZKANIA

Kuchnia jest umeblowania i wyposażona w płytę elektryczną, lodówkę, zmywarkę, okap oraz piekarnik.
Przestronny salon ma zorganizowaną część wypoczynkową jak również część jadalnianą.
W holu znajdują się dwie pojemna szafy w zabudowie.
Łazienka z wanną, WC, umywalką.
W pokojach na podłodze lita deska możliwa do cyklinowania. W łazience i w kuchni gres.


DODATKOWE INFORMACJE

Okna salonu mają ekspozycję południową, dzięki czemu ogródek jest pięknie doświetlony. Pomieszczenia są przestronne, ustawne i łatwe do indywidualnej aranżacji.

W mieszkaniu jest bardzo dużo punktów oświetleniowych, które pozwalają na dostosowanie ich do własnych preferencji i potrzeb.

Czynsz: 1200 zł przy 4 zameldowanych osobach

Stan prawny: własność z KW (możliwość kredytowania).

Możliwa zamiana na mniejsze mieszkanie z dopłatą.

OSIEDLE

Zamknięte osiedle z ochroną na miejscu 24h na dobę.
Zadbane części wspólne budynku, aktywnie działająca Wspólnota.
Przestronne zielone patio z bardzo dobrze wyposażonymi placami zabaw.
Wózkownia / rowerownia dla mieszkańców

LOKALIZACJA

W pobliżu osiedla znajdują się przystanki autobusowe (najbliższy 250 m) oraz budowana jest stacja metra Chrzanów (wejście kilkaset metrów od bloku, na wiosnę zakończenie drążenia tuneli), z której dojazd do centrum zajmie 12 minut. Bardzo dobra komunikacja również samochodem - osiedle położone jest pomiędzy ul. Lazurową a Trasą Bohaterów Bitwy Warszawskiej 1920 r. (dojazd samochodem do centrum Warszawy zajmuje ok. 15-20 min.)

Sklepy: Żabka w odległości 300m i 400m, apteka 600m i kilka sklepów spożywczych, Biedronka, Kaufland, Lidl, dwie piekarnie w odległości 1 km, Pepco, Rossmann, KIK.

Przedszkole 300m, planowana szkoła podstawowa przy ul. Szeligowskiej (otwarcie 09.2025) 300m, biblioteka 350m, przychodnia 700m.

W odległości ok 1 km znajduje się park Górczewska z kortami tenisowymi, tężnią, miejscem do grillowania, placami zabaw oraz amfiteatrem, w którym odbywają się regularnie imprezy kulturalne.

Warte uwagi jest, że Chrzanów rozwija się w oparciu o kompleksowy plan zagospodarowania przestrzennego, z zaplanowanymi i realizowanymi usługami dla mieszkańców (edukacja, placówki zdrowotne, parki itp.) - link do planu:

Zapraszamy do kontaktu oraz na prezentację.

KUPUJĄCY NIE PŁACI PROWIZJI

HomeAlly
Paulina Korczak
Doradca ds. Nieruchomości
789 168 881

Treść niniejszego ogłoszenia nie stanowi oferty handlowej w rozumieniu Kodeksu Cywilnego

Plan Nieruchomości
Mapa
Kontakt z agentem

HomeAlly

Paulina Korczak
Nieprawidłowy adres E-mail

Strona korzysta z plików cookie w celu realizacji usług zgodnie z Polityką prywatności. Możesz określić warunki przechowywania lub dostępu do cookie w Twojej przeglądarce.